• Featured
    • Kaupungit ja kylät
    • Museot ja galleriat
    • Asunnot
    • Etusivu
    • Artikkelit
    • Meistä
    • Yhteistyö
    • Contact
    Lisää ilmoitus
    Kirjaudu tai Rekisteröidy
    0
    Lisää ilmoitus

    Kolmio merinäköalalla Juan-les-Pinsissä

    Skandinaaviseen tyyliin remontoitu asunto loistopaikalla!

    • Soita heti!
    • Lähetä viesti

    Kolmio merinäköalalla Juan-les-Pinsissä

    Skandinaaviseen tyyliin remontoitu asunto loistopaikalla!

    • Soita heti!
    • Lähetä viesti
    • Tiedot
    • Arvostelut 0
    • Ota yhteyttä!
    • prev
    • next
    • Hae reitti
    • Tallenna suosikkeihin
    • Kirjoita arvostelu
    • Jaa
    • Raportoi virheellisestä tiedosta
    • prev
    • next
    Tyyppi
    • Myytävät
    Esittely

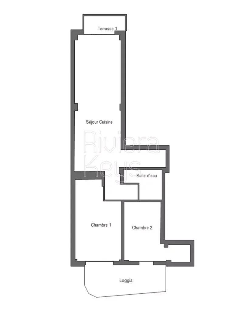
    Myytävänä täysin remontoitu läpitalon kolmio Juan-les-Pins’n keskustassa. Asunto sijaitsee aivan rannan tuntumassa ja sen länteen suuntautuvalta parvekkeelta avautuvat kauniit merinäkymät.

    Asunnossa on valoisa olohuone avokeittiöllä, kaksi makuuhuonetta sekä kylpyhuone wc:llä. Olohuoneesta on käynti n. 3 m2:n terassille. Makuuhuoneista on käynti n. 9 m2:n lasitetulle terassille, joka nyt asuinkäytössä. Asuntoon kuuluu kellarivarasto ja autotalli samassa korttelissa.

    Kaunis skandinaavisen tyylin asunto loistopaikalla lähellä kaikkia palveluita!

    - - - - - - - - - - - - - - - - - - - - -
    Kiinteistövero: 771 €/v
    Yhtiövastike: 149 €/kk
    Energialuokka: C
    REF: DPF-965

    Kuvat: © Riviera Keys

    Tiedot
    • Koko
      55 m2
    • Huoneita
      3
    • Makuupaikkoja
      2 makuuhuonetta
    Yhteystiedot
    • +358 505 677 108
    • https://habisol.com/property/juan-les-pins-3h-55-m2-terassi/
    Kategoria
    • Asunnot
    Sijainti
    • Juan-les-Pins, Antibes, Ranska

      Get Directions
    Kuvagalleria
    Varustelu
    • Arvostettu asuinalue
    • Autotalli
    • Erinomainen kunto
    • Kävelymatka rantaan
    • Hissi
    • Hyvät julkiset kulkuyhteydet
    • Ilmastointi
    • Kävelymatka palveluihin
    • Kellarivarasto
    • Korkea kerros
    • Läpitalon asunto
    • Merinäköala
    Hinnat
    • Myyntihinta
    €495 000
  • Ei vielä kommentteja
  • Lisää arvostelu

    Vastaa · Peruuta vastaus

    Sähköpostiosoitettasi ei julkaista. Pakolliset kentät on merkitty *

    Overall Rating

    Lisää kuvia


      Varmista, että et ole robotti valitsemalla star.

      Saatat olla kiinnostunut myös näistä

      Moderni uudiskohde Saint-Laurent-du-Varissa

      • Chemin des Paluds
      • 27-85 m2
      • 1-4
      • 0-3 makuuhuonetta
      • Pikakatselu
      • Tallenna suosikkeihin
      • Lisää vertailuun

      Kolmio upealla näköalalla Cannesin Croix-des-Gardesissa

      • La Croix des Gardes
      • 86 m2
      • 3
      • 2 makuuhuonetta
      • Pikakatselu
      • Tallenna suosikkeihin
      • Lisää vertailuun

      Remontoitu kolmio upealla näköalalla Villefranche-sur-Merissä

      • Rue de l'Hermitage
      • 50 m2
      • 3
      • 2 makuuhuonetta
      • Pikakatselu
      • Tallenna suosikkeihin
      • Lisää vertailuun
      Facebook Instagram Youtube X-twitter Linkedin Tiktok

      Photos on Instagram
      @rivierathisweek 

      Patikointi Ranskan Rivieralla
      Aallot Coco Beachilla Nizzassa
      Nähtävyydet Ranskan Rivieralla
      Valokuvaus Ranskan Rivieralla
      Risteilyt Ranskan Rivieralla
      Nähtävyydet Cannesissa
      Luonto Nizzassa Ranskan Rivieralla
      Parhaat paikat Ranskan Rivieralla
      Saksofonisoittaja Nizzan Promenadella
      Luonto Ranskan Rivieralla
      Valokuvaus Nizzassa
      Aktiviteetit Ranskan Rivieralla
      Auringonlasku Nizzassa

      Phone / WhatsApp

      +358 40 937 5700

      e-mail

      toimitus(at)rivierathisweek.com

      © Riviera This Week 2026
      All Rights Reserved

      Tilaus- ja sopimusehdot

      Tietosuojaseloste

       

      Ostoskori

        • Featured
        • Kaupungit ja kylät
        • Museot ja galleriat
        • Asunnot
        • Facebook
        • X
        • WhatsApp
        • Viber
        • Telegram
        • LinkedIn
        • Tumblr
        • Reddit
        • VKontakte
        • Mail
        • Copy link
        • Share via...
        • Threads
        • Bluesky
        Kunnioitamme yksityisyyttäsi
        Käytämme evästeitä ja verkkoanalytiikkaa käyttökokemuksen parantamiseksi tällä sivustolla. Keräämme automaattisesti toiminnallisia ja tilastollisia evästeitä sivuston toimivuuden varmistamiseksi ja käyttökokemuksen parantamiseksi.
        Functional Aina aktiivinen
        The technical storage or access is strictly necessary for the legitimate purpose of enabling the use of a specific service explicitly requested by the subscriber or user, or for the sole purpose of carrying out the transmission of a communication over an electronic communications network.
        Asetukset
        Tekninen tallennus tai pääsy on tarpeen laillisessa tarkoituksessa sellaisten asetusten tallentamiseen, joita tilaaja tai käyttäjä ei ole pyytänyt.
        Statistics
        Tekninen tallennus tai pääsy, jota käytetään yksinomaan tilastollisiin tarkoituksiin. The technical storage or access that is used exclusively for anonymous statistical purposes. Without a subpoena, voluntary compliance on the part of your Internet Service Provider, or additional records from a third party, information stored or retrieved for this purpose alone cannot usually be used to identify you.
        Markkinointi
        Teknistä tallennustilaa tai pääsyä tarvitaan käyttäjäprofiilien luomiseen mainosten lähettämistä varten tai käyttäjän seuraamiseksi verkkosivustolla tai useilla verkkosivustoilla vastaavia markkinointitarkoituksia varten.
        • Hallitse vaihtoehtoja
        • Hallinnoi palveluita
        • Hallitse {vendor_count} toimittajia
        • Lue lisää näistä tarkoituksista
        View preferences
        • {title}
        • {title}
        • {title}