• Featured
    • Kaupungit ja kylät
    • Museot ja galleriat
    • Asunnot
    • Etusivu
    • Artikkelit
    • Meistä
    • Yhteistyö
    • Contact
    Lisää ilmoitus
    Kirjaudu tai Rekisteröidy
    0
    Lisää ilmoitus

    Avara asunto upealla merinäköalalla Monacon kainalossa

    Rauhallinen sijainti ja panoraamanäkymät merelle!

    • Soita heti!
    • Lähetä viesti

    Avara asunto upealla merinäköalalla Monacon kainalossa

    Rauhallinen sijainti ja panoraamanäkymät merelle!

    • Soita heti!
    • Lähetä viesti
    • Tiedot
    • Arvostelut 0
    • Ota yhteyttä!
    • prev
    • next
    • Hae reitti
    • Tallenna suosikkeihin
    • Kirjoita arvostelu
    • Jaa
    • Raportoi virheellisestä tiedosta
    • prev
    • next
    Tyyppi
    • Myytävät
    Esittely

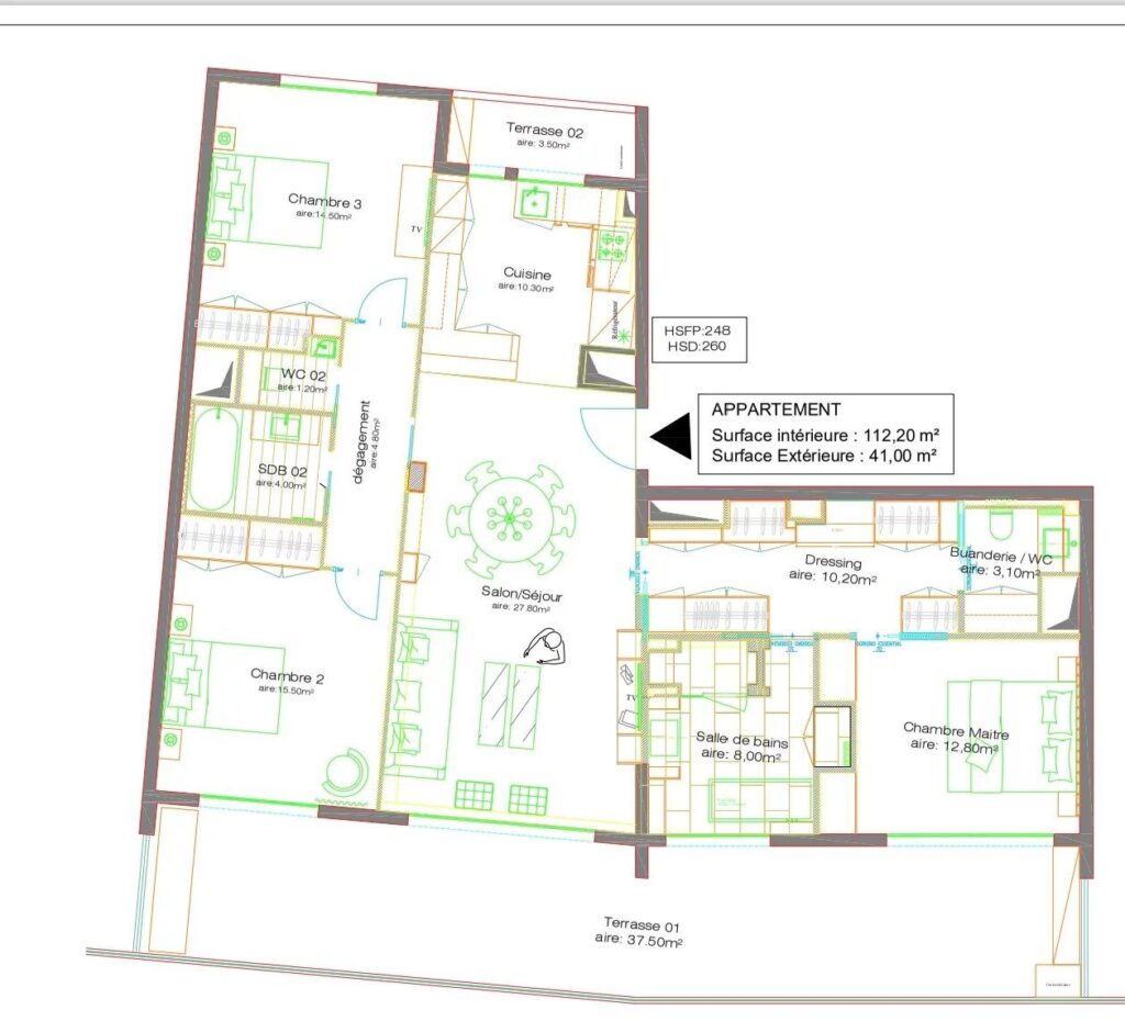
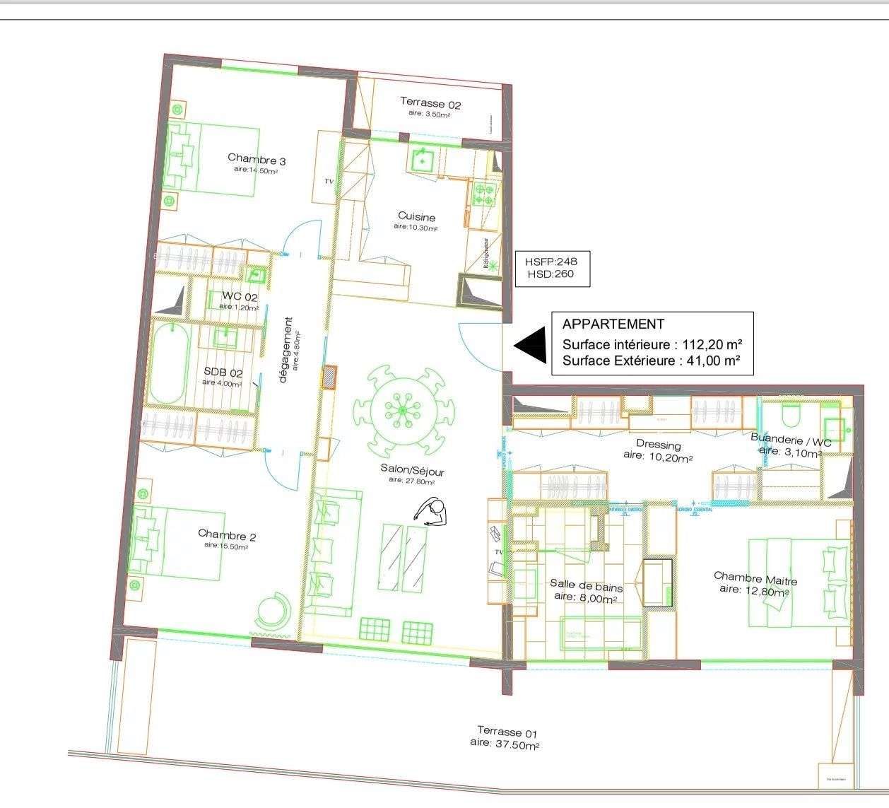
    Myytävänä ylimmän kerroksen asunto Cap d’Ail’ssa, Monacon kainalossa. Korkeatasoisen huoneiston terassilta avautuu huikeat näkymät merelle.

    Asunnossa on eteinen, valoisa olohuone avokeittiöllä, kolme makuuhuonetta, kaksi kylpyhuonetta, kaksi erillistä wc:tä sekä vaatehuone.

    Olohuoneesta ja kahdesta makuuhuoneesta on käynti 34 m2:n terassille, joka suuntautuu etelään ja tarjoaa panoraamanäkymät merelle aina Saint-Jean-Cap-Ferrat’lle saakka.

    Keittiöstä on käynti pohjoisen puolen 3,5 m2:n parvekkeelle. Asuntoon kuuluu kellarivarasto sekä kaksi autotallia.

    Rauhallinen sijainti kävelymatkan päässä Cap d’Ail’n keskustan palveluista ja kuuluisasta La Malan uimarannasta.

    - - - - - - - - - - - - - - - - - - - - - - - - - - -
    Energialuokka: C
    Parvekkeen koko: 34 +3,5 m2
    REF: CAP-977

    Kuvat: © Habisol Oy

    Tiedot
    • Koko
      112 m2
    • Huoneita
      4
    • Makuupaikkoja
      3 makuuhuonetta
    Yhteystiedot
    • +358 505 677 108
    • https://habisol.com/property/cap-dail-4h-112-m2-terassi/
    Kategoria
    • Asunnot
    Sijainti
    • Cap-d'Ail, Ranska

      Get Directions
    Kuvagalleria
    Varustelu
    • Arvostettu asuinalue
    • Arvostettu taloyhtiö
    • Autotalli
    • Erinomainen kunto
    • Hyvät julkiset kulkuyhteydet
    • Aurinkoinen ilmansuunta
    • Kävelymatka palveluihin
    • Kävelymatka rantaan
    • Kellarivarasto
    • Läpitalon asunto
    • Merinäköala
    • Rauhallinen sijainti
    • Ylin kerros
    Hinnat
    • Myyntihinta
    €1 490 000
  • Ei vielä kommentteja
  • Lisää arvostelu

    Vastaa · Peruuta vastaus

    Sähköpostiosoitettasi ei julkaista. Pakolliset kentät on merkitty *

    Overall Rating

    Lisää kuvia


      Varmista, että et ole robotti valitsemalla house.

      Saatat olla kiinnostunut myös näistä

      Moderni uudiskohde Saint-Laurent-du-Varissa

      • Chemin des Paluds
      • 27-85 m2
      • 1-4
      • 0-3 makuuhuonetta
      • Pikakatselu
      • Tallenna suosikkeihin
      • Lisää vertailuun

      Kolmio upealla näköalalla Cannesin Croix-des-Gardesissa

      • La Croix des Gardes
      • 86 m2
      • 3
      • 2 makuuhuonetta
      • Pikakatselu
      • Tallenna suosikkeihin
      • Lisää vertailuun

      Remontoitu kolmio upealla näköalalla Villefranche-sur-Merissä

      • Rue de l'Hermitage
      • 50 m2
      • 3
      • 2 makuuhuonetta
      • Pikakatselu
      • Tallenna suosikkeihin
      • Lisää vertailuun
      Facebook Instagram Youtube X-twitter Linkedin Tiktok

      Photos on Instagram
      @rivierathisweek 

      Patikointi Ranskan Rivieralla
      Aallot Coco Beachilla Nizzassa
      Nähtävyydet Ranskan Rivieralla
      Valokuvaus Ranskan Rivieralla
      Risteilyt Ranskan Rivieralla
      Nähtävyydet Cannesissa
      Luonto Nizzassa Ranskan Rivieralla
      Parhaat paikat Ranskan Rivieralla
      Saksofonisoittaja Nizzan Promenadella
      Luonto Ranskan Rivieralla
      Valokuvaus Nizzassa
      Aktiviteetit Ranskan Rivieralla
      Auringonlasku Nizzassa

      Phone / WhatsApp

      +358 40 937 5700

      e-mail

      toimitus(at)rivierathisweek.com

      © Riviera This Week 2026
      All Rights Reserved

      Tilaus- ja sopimusehdot

      Tietosuojaseloste

       

      Ostoskori

        • Featured
        • Kaupungit ja kylät
        • Museot ja galleriat
        • Asunnot
        • Facebook
        • X
        • WhatsApp
        • Viber
        • Telegram
        • LinkedIn
        • Tumblr
        • Reddit
        • VKontakte
        • Mail
        • Copy link
        • Share via...
        • Threads
        • Bluesky
        Kunnioitamme yksityisyyttäsi
        Käytämme evästeitä ja verkkoanalytiikkaa käyttökokemuksen parantamiseksi tällä sivustolla. Keräämme automaattisesti toiminnallisia ja tilastollisia evästeitä sivuston toimivuuden varmistamiseksi ja käyttökokemuksen parantamiseksi.
        Functional Aina aktiivinen
        The technical storage or access is strictly necessary for the legitimate purpose of enabling the use of a specific service explicitly requested by the subscriber or user, or for the sole purpose of carrying out the transmission of a communication over an electronic communications network.
        Asetukset
        Tekninen tallennus tai pääsy on tarpeen laillisessa tarkoituksessa sellaisten asetusten tallentamiseen, joita tilaaja tai käyttäjä ei ole pyytänyt.
        Statistics
        Tekninen tallennus tai pääsy, jota käytetään yksinomaan tilastollisiin tarkoituksiin. The technical storage or access that is used exclusively for anonymous statistical purposes. Without a subpoena, voluntary compliance on the part of your Internet Service Provider, or additional records from a third party, information stored or retrieved for this purpose alone cannot usually be used to identify you.
        Markkinointi
        Teknistä tallennustilaa tai pääsyä tarvitaan käyttäjäprofiilien luomiseen mainosten lähettämistä varten tai käyttäjän seuraamiseksi verkkosivustolla tai useilla verkkosivustoilla vastaavia markkinointitarkoituksia varten.
        • Hallitse vaihtoehtoja
        • Hallinnoi palveluita
        • Hallitse {vendor_count} toimittajia
        • Lue lisää näistä tarkoituksista
        View preferences
        • {title}
        • {title}
        • {title}